



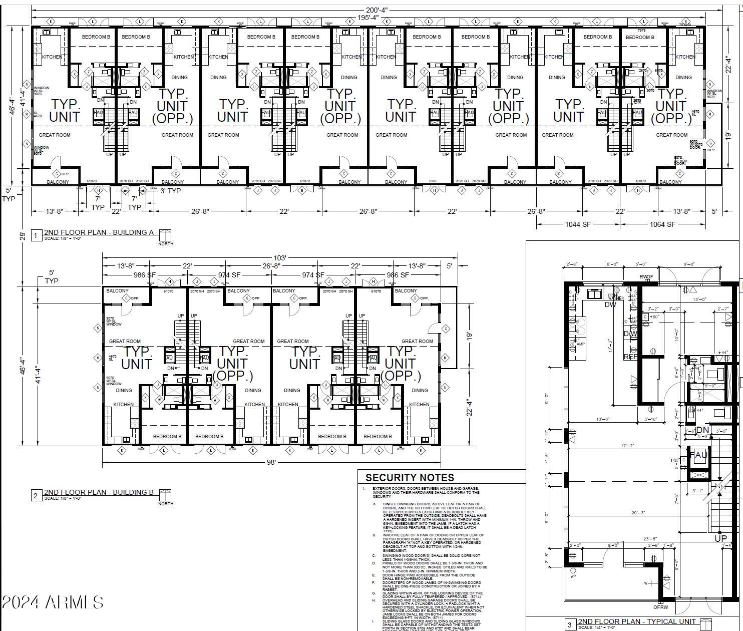
UNDER CONSTRUCTION - PROJECTED COMPLETION JANUARY 2026 Gated Townhome Complex, 12 4bd/3bth trilevel, 2215sf units. There are two buildings, each end unit benefits from additional windows and a larger balcony! Each unit is completed with the same modern and low maintenance finishes - 10' ceilings on main floor, white cabinetry, quartz countertops, 2 car tandem garage for each unit, in unit washer/dryer, stainless steel appliances! There will be a community pool in the sw corner of complex and each unit will have their own backyard with green space! There will be 13 additional parking spaces (outside of the garage space with 1 of them ada). 26,400 rentable area of property on nearly an acre!
| a month ago | Listing updated with changes from the MLS® | |
| 2 months ago | Listing first seen on site |
Did you know? You can invite friends and family to your search. They can join your search, rate and discuss listings with you.